Santa Fe Wedding Locations & New Mexico Banquet Rooms - The Bishop's Lodge
The Bishop's Lodge Ranch Resort and Spa. Santa Fe
Map and Directions Contact Us Media Kit Employment History
Villas Photo Gallery Shanah Spa Weddings Meetings and Special Events Dining
Floor Plans and Capacity
Wedding RFP
Floor Plans and Capacity
Photos
Menus
Quick Reservations

  •    




  • Lowest internet rates guarantee
  • Fees and policies
Chat with a Specialist
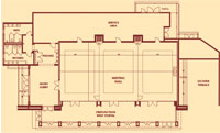
Floor Plans and Capacity


Name
Dimensions
Square Feet
Theater
Classroom
Reception
Banquet
Conference Center
80x40
3,200
320
180
425
300
Pre-Function Portal
80x12
960
varies
varies
varies
varies
Thunderbird Room
38x52
1,482
150
80
200
140
El Charo Lounge
28x44
1,232
40
N/A
70
30
Skylight
20x21
420
20
16
25
20
Alcove Room
15x24
360
50
24
50
30
Fiesta Room
15x24
360
50
24
50
30
West Lawn
99x62
6,138
N/A
N/A
400
300


Click on the floorplans below to enlarge:




Click here to download our Conference Facilities brochure.